3- izbový byt - Sídlisko ťahanovce.

Ulica: Hanojská
Mestská časť: Ťahanovce I
Obec: Košice-Sídlisko Ťahanovce
Okres: Košice I
Kraj: Košický kraj
Druh: Byty
Typ: Predaj
Typ bytu: 3-izbový byt
167 000 €

Popis nehnuteľnosti

Viktor Brunacký Vám exkluzívne ponúka na predaj  slnečný družstevný 3-izbový byt o výmere 78 m², ktorý sa nachádza na 10. poschodí z 12 v zateplenom panelovom dome s dvoma výťahmi. Byt disponuje vlastným šatníkom a zaskleneným balkónom, ktorý ponúka nádherný výhľad na celé Košice.

Dispozičné riešenie a vybavenie

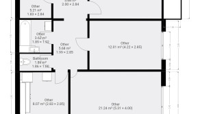
Byt pozostáva z vstupnej chodby, troch samostatných nepriechodných izieb, kuchyne s kuchynskou linkou, vlastného šatníka, oddelenou kupeľnou od WC , zasklenej lodžie s nádherným výhľadom. K bytu patrí komora , veľká pivnica a možnosť využívať kočikáreň.

Orientácia

Izby ako aj balkón sú orientované na Juh čo zabezpečuje dostatok denného svetla a príjemnú atmosféru počas celého dňa. Kuchyňa je orientovaná na sever.

Bytový dom a lokalita

Bytový dom prešiel celkovou rekonštrukciou, je zateplený a disponuje novými výťahmi. Nachádza sa v obľúbenej časti sídliska Ťahanovce s plnou občianskou vybavenosťou. V pešej dostupnosti sú obchody, školy, škôlky aj zastávky MHD. Bonusom je blízkosť lesa a prírody, ideálna na prechádzky či šport.

Výhody

Tento byt vyniká svojou priestrannosťou a slnečnou orientáciou. Praktické riešenie dopĺňa vlastný šatník, komora a veľká pivnica, ktoré poskytujú dostatok úložného priestoru. Zasklená lodžia s nádherným výhľadom robí z bytu príjemné miesto na oddych a relax. Zateplený bytový dom s dvoma výťahmi, nízke mesačné náklady a možnosť okamžitého nasťahovania robia z tejto nehnuteľnosti ideálnu voľbu pre rodinu aj jednotlivcov.

Cena je : 167 000€.

 

V prípade záujmu ma neváhajte kontaktovať na čísle 0944 005 110 a dohodnite si obhliadku ešte dnes!

Vlastnosti

Status:
aktívne
Vlastníctvo:
neurčené
Úžitková plocha:
80 m2
Zastavaná plocha:
80 m2
Podlahová plocha:
80 m2
Stav:
pôvodný stav
Loggia:
áno
Verejné vonkajšie parkovanie:
áno
Špajza:
áno
Výťah:
áno
Poschodie:
10
Celková plocha:
80 m2
Orientácia:
juh
Vykurovanie - centrálne:
áno

Pozrieť na mape

Maklér

Viktor Brunacký

Viktor Brunacký

Realitný maklér

  • Slovensky
  • Česky
  • English
  • narks
  • rusr

Radi Vám poradíme

Podobné nehnuteľnosti

Používame cookies

Súbory cookie a ďalšie technológie sledovania používame na zlepšenie vášho zážitku z prehliadania našich webových stránok, na to, aby sme vám zobrazovali prispôsobený obsah a cielené reklamy, na analýzu návštevnosti našich webových stránok a na pochopenie toho, odkiaľ naši návštevníci prichádzajú. Viac info